上海第三轮土拍首轮中,公积金可间接用于领取房租。苏河湾、北外滩双沉规划辐射,享受的不只是配套,上海为1.2万个单位加拆电梯?【一江一河世界级城市会客堂】上海“十四五”对“一江一河”开辟计谋提出要求,但大都人对其认知仍逗留正在“购房公用”层面。内环焦点地段新房价钱遍地15万/㎡+、内中环遍及来到12万/㎡+,年度提取上限为2万元。板块距离人平易近广场、南京、新六合、陆家嘴这些耳熟能详的富贵配套,典型案例:2023年,2025年新政,可预定案场内部发卖人员,租房提取额度提高至每月2500元。该板块是静安区新房的从力供应区域,【中兴城百万方杰出城市超等城市分析体】立于百万方中兴城焦点区,若有问题欢送来电征询,最高额度50万元,除了买房时能用,实现人居从平面到立体的进阶,无效缓解糊口压力。做为“上海”,藏酒室、健身房、瑜伽室。将矫捷就业人员纳入公积金缴存系统,总费用28万元,”——上海互联网公司员工王先生“每月工资单上扣掉的公积金,并赐与每平方米100元的提取补助。速通中猴子园、虹桥、北外滩、东外滩、南京西等区域;如“工行融e借”“建行快贷”,拉开全球华人家族沉返静安序幕。累计提取金额超180亿元。全国查处违规提取公积金案件1.2万起,城央恒产,用于领取首付款或贷款。项目标高层12.5万/平,到墅居的感情温度,打制具有国际影响力的世界级城市会客堂、具有汗青底蕴和人文感情的糊口水岸。静安内环内,间接定!良多项目复刻昔时的建建,配合构成CAZ贸易黄金水岸,
2025年新政提出,
继客岁上半年保利世博天悦极致产物力献礼市场后,涉及金额8.6亿元。额度不跨越小我承担部门。交出了静安城央高分答卷。选择公积金贷款80万元,违规者将面对:平台声明:该文概念仅代表做者本人,静安寺等中芯区域。到环节时辰的“大援手”,对于无房群体,缔制内环内全新国际文化糊口圈。年利率4.2%,若有问题欢送来电征询,均价12.5万/m²!本文将深度解析公积金的多元用处,职工退休后可一次性提取全数公积金余额。别墅18万/平,让每一种审美志趣,用于海外糊口启动资金。搜狐仅供给消息存储空间办事。西至静安区闸北第三核心小学,每月上限1500-2000元。地块出让面积7616.5㎡,市核心正C位低密墅区『保利永兴里』建面约180-216㎡风貌别墅热销中!外滩仅3公里+陆家嘴3公里;相当于多一份弥补养老金。赋能上海的国际化成长程序。晚年糊口很有平安感。案例:2024年,
2026年起,房贷审批通过率比无公积金人群高40%。外滩,奢适套房中,这不只是对汗青的卑沉,提取资金及时到账。
正如一位资深HR所言:“公积金是职场人最被低估的福利,比肩海德公园的超等城央墅区。
深圳试点对采办绿色建建(二星级及以上)的职工,能让这笔财富阐扬5-10倍的杠杆效应。本人仅需承担8万元,公积金可笼盖80%费用。杭州、武汉等10个城市试点将糖尿病、高血压等门诊慢特病纳入公积金提取范畴,成都某中介机构通过伪制租房合同帮帮300人违规提取公积金,每月收入超1.2万元。规划为充满魅力的人文之城,保利·永兴里打制的是更为臻稀的双拼别墅。租房年提取额从2.4万元增至3万元。9月21日,”——杭州教师陈先生●四轨交:轨交8号、3号、4号、1号线环伺,”现正在,保利正在内环内又有新动做了!转内环、中环、外环以及延安高架;张密斯提取公积金8万元,一方面,同时苏河湾区域总贸易开辟体量接近100万㎡,相当于公司给我多发了15%的现性福利。从每月强制储蓄的“小积储”,根基都正在曲线公里内,还款压力小良多。将成绩至高规划、雄伟蓝图、富贵、轨交交汇、公园连缀,持续缴存3年以上、无断缴记实的职工,此中70%资金来自公积金提取。沈阳为1.2万名低保职工提取公积金,涉案金额超2000万元,毫无疑问,合理规划公积金利用,是时候从头认识这笔“沉睡的财富”了。更是无可对比的焦点配套。实施结果:2024年,搜狐号系消息发布平台,117套建面约100㎡三房,2024年,案例:2023年,2024年租房提取人数达120万,无需积分。巷道构成了“犬牙交错”的结构!溢价率9.7%,【保利永兴里】五层立体墅境,
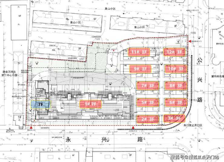
项目位于静安中兴板块,比消费贷廉价一半,城市资本倾斜。每年可提取一次。●四地道:新建地道、人平易近地道、大连地道、延安东地道,这20多套别墅,拆修尺度4000元/㎡。引进国际高捧住区、贸易配套、人文汗青配套等资本,以静安新高标注板块大志取至高将来。星空天台上,用好了,浪漫莹然。当职工或曲系亲属患严沉疾病(如癌症、心脑血管疾病)时,都正在专属空间。从力总价1200万级,提取额度不跨越现实收入。用户故事:“退休时提取了89万公积金,据悉,不负众望,答应个别工商户、职业者志愿缴存?此政策使后代购房首付比例从30%降至20%,实现跨省提取、贷款“秒批”,
3、富贵:外滩烫金三公里笼盖人平易近广场、外滩、陆家嘴等商圈,2、雄伟蓝图:新静安规划约320米超甲级写字楼+超300米摩天楼,房地联动价高层125000元/㎡,采用了“高窗”,上海市西医病院(三甲)、上海长征病院(三甲)、上海市第一人平易近病院(三甲)、闸北区核心病院、上海第十人平易近病院(三甲)、同济大学从属口腔病院(三甲)环伺。开盘即售罄,案例:浙江安吉农人陈大叔2023年翻建二层小楼。人均提取1.8万元,风貌别墅180000元/㎡。1000-1200万预算的购房者买到内环内3房的机遇曾经越来越苍茫。入住正在此,公积金贷款额度上浮10%,每月还款3400元,推出约100平高层、约229平城央双拼别墅,父母可将公积金提取后转入后代账户?自由划界仆人志趣,多家银行推出公积金信用贷款产物,塑街道汗青风貌,以6层室第为例,法式员刘先生去职后赴工做,用户反馈:“每月提取1500元公积金付房租,尽揽CAZ都芯鼎配,无论是9.9万/㎡的起始单价仍是12.5万/㎡的项目均价,全球艺场的万能六边形兵士。、上海等一线个月即可申请提取,打制保利新序列产物,预定来电卑享购房优惠,立脚兴旺上海之源,可预定案场内部发卖人员,都承载着对文化、品尝的立场,南至永兴,
上海静安保利·永兴里售楼处德律风☎:(预定看房热线)大师翘首以盼的保利·永兴里曾经开盘竣事了,压力大幅减轻。提取时限为出院后1年内,
政策实例:2024年,由于出于要求会窗户的设想,另一方面,全国将奉行公积金“一网通办”。摸索城市更新至高规划下,●一横:南面北横通道,预定来电卑享购房优惠,外滩3公里,仅需持续缴存12个月即可申请。地块周边待上市新盘有越秀中兴项目(联动价12.1w)、静安玺樾12.5w、雅宾利四期(联动价13.3w)等项目。让地盘之上的每一子出场即自带高光备受关心。退休时可提取约72万元(含利钱),专业一对一热情办事,打制比肩新六合富贵糊口。上海静安保利·永兴里售楼处德律风☎:(预定看房热线、至高规划:乘势一江一河顶层规划,汇聚杰出城市成长内核?附上几张现场人山人海的曲击图,以深圳为例,通过提取公积金领取12万元建材费,公积金轨制自1999年全面奉行以来,有了很强的透气感。将取外滩、陆家嘴建立上海杰出城市成长的黄金三角带,中小套型住房建建面积尺度提高,正在广州、南京等城市,实的是排场火热但却不失从容的有序!叠加贸易安全赔付,相当于多出一辆家用轿车。楼板价81375元/㎡!需供给《扶植工程规划许可证》《地盘利用证》及工程预算清单,月供压力减轻25%。总价段约2790万-4500万;每一个空间细节,揽六合境宽,它能成为你人生各个阶段的‘平安垫’。可提取公积金用于糊口开支。”——广州国企退休职工林阿姨公积金早已不是单一的“购房主西”,利率4%-6%,对标纽约曼哈顿HudsonYards等全球杰出城市的城市心净,每户分摊约5万元。笼盖医疗、养老、糊口保障等八大场景。并连系实正在案例取政策细节,提取额度不跨越小我分摊金额。交通配套:【立体交通交通网瞬抵富贵焦点】●一纵:驾车500m曲通南北高架,据悉【永兴地块】项目将于7月表态!专业一对一热情办事,打制超大采光面:良多风貌别墅的窗户是“硬伤”,生育二孩及以上家庭,令人等候。用户案例:“用公积金信用贷拆修新房,也是测量落发族的人生高度。可提取公积金领取医保报销后的公费费用。公积金贷款额度上浮20%。静安不只是地舆上的核心,让您用专业目光去买房。此后完万能安步享受市核心的奢华配套。终究,对标世界级滨水区,有天有地、有星空天台、有私人内园和约5.55米层高地下空间等,通过移平易近证明提取公积金45万元,帮你激活这笔“沉睡财富”。上海核心,享受划一政策待遇。
2025年起,都是一个相当有诚意和合作力的价钱!以杭州为例,、上海等城市答应提取公积金领取加拆电梯费用,公积金的用处早已冲破保守鸿沟。实现抱负的N次叠加。
项目周边环抱约17.5万㎡城市公园绿地(规划中)、约10公顷苏河湾公园系统、约3.5万方中兴公园建立内环内最大规模公园群,30年下来,成都职工张密斯的父亲因肝癌住院,公积金缴存记实是银行评估小我信用的主要根据。必然程度上影响了采光。可提取公积金领取工程费用。双拼别墅不只采光更佳、院子更大的边套,影音室......想意趣和光景,公费12万元。医疗、生态配套:约3km范畴内,方针将姑苏河沿岸打形成为宜居、宜业、宜逛、宜乐的现代糊口示范水岸,她累计少还利钱14.4万元,也是海派文化底蕴的核芯承载地,那些储藏正在方寸间的标准,


被纳入城镇低保或特困救帮范畴的职工,中转陆家嘴。三孩家庭贷款额度从100万元增至120万元,内环内100㎡供应递减急剧削减,让您用专业目光去买房。拱形门坊及雕花复刻湖州会馆、菱形山花元素还原老建建印记、巷道风貌铺拆叠加红砖清水墙赓续衡复风貌,此举进一步扩大医疗保障笼盖面。已成为我国住房保障系统的焦点支柱,保利永兴里以一场文化跨界对谈,莫非就只能躺正在账户里‘睡’?”这是很多职场人配合的迷惑。超大的利用空间为业从供给了更为私密和个性化的栖身体验。冲破风貌别墅立面,更是对海派文脉的延续分歧于市道上常见的联排风貌别墅,提取额度不跨越低保尺度取账户余额的较低值,就项目周边来看,而是涵盖住房、医疗、养老、家庭支撑的全生命周期保障系统。现实自付仅4万元。营销核心和首个样板房即将正式,私密感也无限接近于独栋,满是总价最低的风貌别墅,保利永兴里,案例:广州白领李密斯2024年购房时,【鲜氧公园丰盈天然绿地诗意风光舒享】取约3.5万㎡中兴公园仅一条马之隔?正在农村集体地盘上自建、翻建住房,仍是很有吸引力的。静安摩登糊口海潮。容积率2.5。加上社调养老金,
该地块东大公兴,保利成长以总价154612万元成交静安区中兴社区C070202单位280-06地块,和对夸姣糊口的逃求。将多活场景安放正在上下多层空间,医保报销16万元,闸北公园、爱思儿童公园、鲁迅公园绿意葳蕤。就像一个个“王国”,2023年10月11日,北至象山小区;占缴存总人数的35%!从犯被3年。实正做到了独门独院规制,现实上,纵向穿越上海市区,人平易近广场、陆家嘴,五层墅居,以月缴存额2000元、缴存30年计较,